Cửa cuốn là một dạng cửa đặc biệt, sử dụng đa số là những linh kiện nhỏ để lắp đặt. Do đó để không phát sinh lỗi khi lắp đặt cửa cuốn thì những kết quả đo đạc ban đầu thật chuẩn xác. Với nhiều kinh nghiệm trong hoạt động lắp đặt, cung ứng, phân phối và sửa chữa cửa cuốn trên địa bàn Tp.HCM, chúng tôi tự tin đặc biệt về các kĩ thuật cửa cuốn.
Quy tắc điều chỉnh và đo kích thước cửa khi lắp đặt cửa cuốn
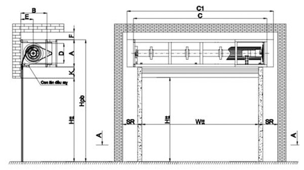
Đây được coi là yếu tố cơ bản nhất cho mọi hướng cách dẫn lắp đặt cửa cuốn hiện tại. Quy tắc này có hai điểm cơ bản sau:
1. Đo khoảng cách giữa trần tới thông thủy và từ thông thủy xuống nền để làm căn cứ đục lỗ thoáng cửa cuốn.
Nếu quả lỗ có đường kính 450mm thì hộp kỹ thuật phải đạt ít nhất đường kính này để đảm bảo thông thủy có thể kéo dãn được.
2. Đo khoảng cách hai bên đường ray cửa cuốn.
Khi lắp đặt đường ray, 2 bên ray cần đặt được khoảng cách ít nhất là 80mm mới có thể thực hiện được. Việc lắp đặt ray cửa cuốn cũng phụ thuộc nhiều vào loại ray được chọn: nếu ray nhôm U60 thì ít nhất là 80mm, với U90 cần tối thiểu là 140mm…

Xem thêm: Kinh nghiệm lựa chọn công suất motor cửa cuốn phù hợp, hiểu quả
Quy tắc khảo sát và lắp đặt cửa cuốn vào thực tế
Hướng dẫn cách lắp đặt cửa cuốn cơ bản ngoài yêu cầu đo kích thước thật chính xác, còn có những lưu ý quang trọng liên quan đến những các yếu tố kỹ thuật khác. Các yếu tố kỹ thuật này dựa trên vật liệu sử dụng trong quá trình lắp đặt.
Có hai lưu ý đặc biệt quan trọng sau đây:
1. Chiều của quả lô cuốn của cửa cuốn.
Cần phân biệt rõ ràng hai loại lô ngoài và trong, tránh tuyệt đối sơ xuất dẫn đến lắp đặt sai gây thiếu thẩm mỹ cho cửa cuốn.
2. Động cơ và chiều hoạt động của các loại motor của cửa cuốn.
Để lắp đặt cửa cuốn an toàn, chiều quay, chiều hoạt động của motor có vai trò rất quan trọng, do đó, luôn đảm bảo xác định rõ vị trí động cơ ở bên trái hay bên phải lô cuốn.
Hai điểm lớn trên là điều cơ bản nhất trong hướng dẫn cách lắp đặt cửa cuốn, ngoài ra để quy trình lắp đặt được hoàn thiện, người sử dụng cửa cuốn chú ý một số lưu ý khác về cánh gà của lô cuốn.
Chú ý về lắp đặt 2 bên cánh gà của lô cửa cuốn
Nếu như nhận thấy 2 bên lô cuốn có khoảng cách đủ rộng, bạn hoàn toàn có thể chọn kích thước thông thủy mong muốn. Vừa đảm bảo thẩm mỹ, vừa đảm bảo hiệu suất sử dụng. Tuy nhiên, với trường hợp khoảng cách bị hạn chế, cách chọn sẽ dựa trên nguyên tắc: Lấy kích thước rộng phủ bì và trừ đi 200 – 250mm phần thừa để chọn mẫu thông thủy phù hợp.
Xem thêm: Sửa cửa cuốn giá rẻ
Một số lưu ý khác về lắp đặt cửa cuốn
Sau khi lắp đặt thành công, người sử dụng cần đảm bảo thực hiện những nguyên tắc an toàn sau:
- Không được đóng mở cửa khi có người đi qua
- Không trẻ nhỏ chơi điều khiển từ xa
- Nên lắp thêm thiết bị tự dừng và báo động. Phải đảm bảo thiết bị tự dừng đang hoạt động tốt, cần thử nghiệm ngay sau quá trình lắp đặt cửa cuốn thành công
- Nút bấm âm tường phải lắp ở vị trí dễ thao tác, dễ nhìn thấy nhưng phải nằm ngoài tầm với của trẻ nhỏ. Tránh nước và nơi có độ ẩm cao.
- Không được tự ý đóng mở cửa khi đang có sửa chữa
- Công việc sửa chữa phải do người có đào tạo chuyên môn.
Xu hướng lắp đặt cửa cuốn ngày càng được ưa chuộng bởi tính phẩm mỹ và lợi ích của cửa cuốn. Do tình hình kinh tế khó khăn bạn cần lựa chọn địa chỉ lắp đặt giá rẻ nhưng phải đảm bảo uy tín, chất lượng tại TPHCM thì Việt Á là một trong những đơn vị bạn có thể lựa chọn.
Việt Á là đơn vị lắp đặt cửa cuốn giá rẻ tại TP.HCM chuyên cung cấp dịch vụ lắp đặt và sửa chữa cửa cuốn với mức giá cạnh tranh nhất thị trường. Với nhiều năm kinh nghiệm trong ngành, chúng tôi cam kết mang đến cho khách hàng những sản phẩm và dịch vụ tốt nhất, đáp ứng mọi nhu cầu của bạn.
Sản phẩm cửa cuốn tại Việt Á với đa dạng mẫu mã từ chất liệu đến kiểu dáng để khách hàng có thể lựa chọn phù hợp với không gian và phong cách kiến trúc của bạn.
Với đội ngũ kỹ thuật viên giàu kinh nghiệm trong lắp đặt và sửa cửa cuốn. Khi đến lắp đặt, họ sẽ tiến hành công việc một cách chuyên nghiệp, nhanh chóng và đảm bảo an toàn tuyệt đối. Đội ngũ kỹ thuật viên của chúng tôi cũng sẽ cung cấp hướng dẫn sử dụng và bảo trì cửa cuốn cho khách hàng, giúp duy trì hoạt động ổn định và kéo dài tuổi thọ của cửa cuốn.
Việt Á cam kết mang đến mức giá cạnh tranh và phù hợp với ngân sách của khách hàng. Chúng tôi hiểu rằng việc lắp đặt cửa cuốn là một đầu tư quan trọng, vì vậy chúng tôi luôn nỗ lực để đưa ra giá cả hợp lý và tối ưu nhất cho khách hàng.
Liên hệ ngay 0964.342.223 với Việt Á nếu bạn đang cần lắp đặt cửa cuốn
VIỆT Á – UY TÍN TẠO NIỀM TIN
Địa chỉ: 126 Đường số 28, Phường 6, Quận Gò Vấp, TP.HCM
Điện thoại: 0964.342.223
Email: nghiembang1905@gmail.com
Website: https://suacuacuontphcm24h.vn/
